Liefkemeirestraat10b204 (2 slpk)
REF: 7235382
Liefkemeirestraat 10/204, 9800 Deinze
€ 950 p/m
- 97 m²
- 2
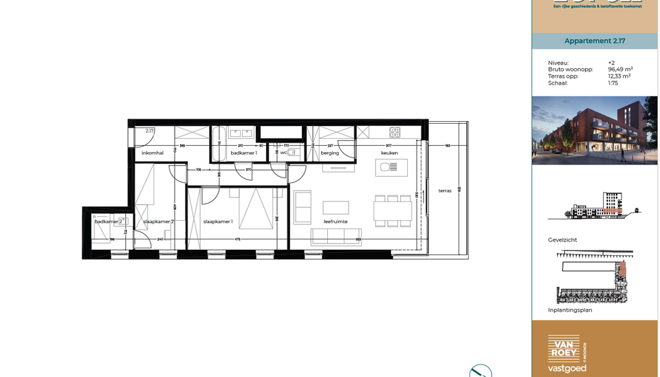
Op zoek naar een leuk 2 slaapkamer appartement met 2 badkamers dat centraal gelegen is? Dan is dit nieuw energiezuinig appartement dichtbij het station wat je zoekt! Een ondergrondse staanplaats is in de huurprijs inbegrepen. Dit pand is energiezuinig dus je verbruikskosten zullen tot een minimum beperkt zijn en dankzij akoestische isolatie hoor je amper de trein rijden.
De ruime inkomhall met voldoende plaats voor een garderobekast leidt je naar de lichtrijke woonruimte met open volledig uitgeruste keuken (vitrokeramische kookplaat, dampkap, heteluchtoven, inbouwkoelkast en vaatwasser) met ruim overdekt terras. Aan de keuken grenst een aparte berging waar de aansluiting zit voor wasmachine en droogkast en met voldoende ruimte voor extra opslag. Verder vind je een ruime slaapkamer, een prachtig ingerichte badkamer met dubbele wastafel en bad en een tweede kleinere slaapkamer met eigen doucheruimte voorzien van een inloopdouche en wastafel. Het appartement is voorzien van licht armaturen en gordijnrails.
De ondergrondse staanplaats (P28) is inbegrepen in de huurprijs van het appartement.
Domicilie verplicht.
Huurprijs : 950 Euro per maand
Huurwaarborg : 3 maanden huur
Gemeenschappelijke lasten : 75 Euro provisie per maand
Er zijn individuele tellers voor water, gas en electriciteit.
EPC : A
Beschikbaar : meteen
Bezoeken enkel na afspraak.
Een bezoek plannen? Dit kan enkel via onze website www.stellarimmo.be/te-huur. Ga naar het pand en klik op de 'een bezoek aanvragen' knop onder de foto van de makelaar. Wij nemen dan contact met u op.
Voor verdere info contacteer Martine via martine@stellarimmo.be
De ruime inkomhall met voldoende plaats voor een garderobekast leidt je naar de lichtrijke woonruimte met open volledig uitgeruste keuken (vitrokeramische kookplaat, dampkap, heteluchtoven, inbouwkoelkast en vaatwasser) met ruim overdekt terras. Aan de keuken grenst een aparte berging waar de aansluiting zit voor wasmachine en droogkast en met voldoende ruimte voor extra opslag. Verder vind je een ruime slaapkamer, een prachtig ingerichte badkamer met dubbele wastafel en bad en een tweede kleinere slaapkamer met eigen doucheruimte voorzien van een inloopdouche en wastafel. Het appartement is voorzien van licht armaturen en gordijnrails.
De ondergrondse staanplaats (P28) is inbegrepen in de huurprijs van het appartement.
Domicilie verplicht.
Huurprijs : 950 Euro per maand
Huurwaarborg : 3 maanden huur
Gemeenschappelijke lasten : 75 Euro provisie per maand
Er zijn individuele tellers voor water, gas en electriciteit.
EPC : A
Beschikbaar : meteen
Bezoeken enkel na afspraak.
Een bezoek plannen? Dit kan enkel via onze website www.stellarimmo.be/te-huur. Ga naar het pand en klik op de 'een bezoek aanvragen' knop onder de foto van de makelaar. Wij nemen dan contact met u op.
Voor verdere info contacteer Martine via martine@stellarimmo.be
Details van het pand
Financieel
- Prijs
- € 950 per maand
- Beschikbaarheid
- Onmiddellijk
- Huurgarantie - aantal maanden
- 3
Ligging
- Ligging
- Nabij station
- Omgeving school
- 600,00 m
- Omgeving openbaar vervoer
- 250,00 m
- Omgeving winkels
- 200,00 m
- Omgeving autosnelweg
- 5.000,00 m
- Omgeving sportcentrum
- 850,00 m
Comfort
- Videofoon
- ja
- Aansluiting gas
- ja
- Aansluiting water
- ja
Gebouw
- Bewoonbare opp.
- 96,50 m²
- Bouwjaar
- 2023
- Verdieping
- 2
Terrein
- Tuin
- nee
Energie
- Dubbel glas
- ja, Thermische and akoestische onderbreking
- Type verwarming
- Individueel
Technieken
- Elektriciteit
- ja
Garage
- Binnenparking
- 1
Indeling
- Keuken
- ja
- Terras
- ja
- Terras 1
- 12,30 m²