Ingelandgat31b001 (2 slpk)
REF: 7556119
Ingelandgat 31/001, 9000 Gent
€ 1.200 p/m
- 69 m²
- 2
- 1
Dit luxueuze instapklare 2 slaapkamer appartement bevindt zich in een kleinschalige nieuwbouw residentie in het hartje van Gent (nabij de St Michielsparking). Deze architecturale parel is een realisatie van CAAN architecten uit Gent. Je geniet hier in alle rust met het bruisende centrum van de stad op loopafstand.
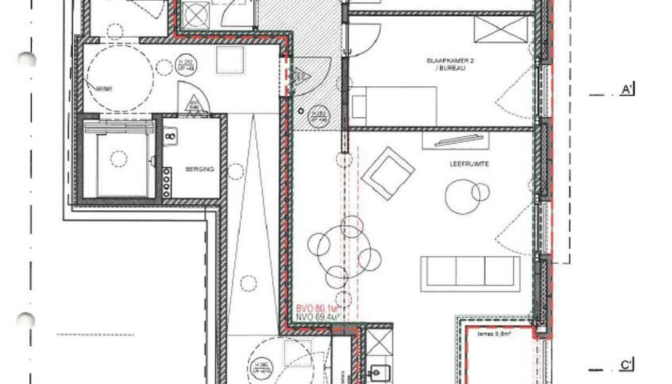
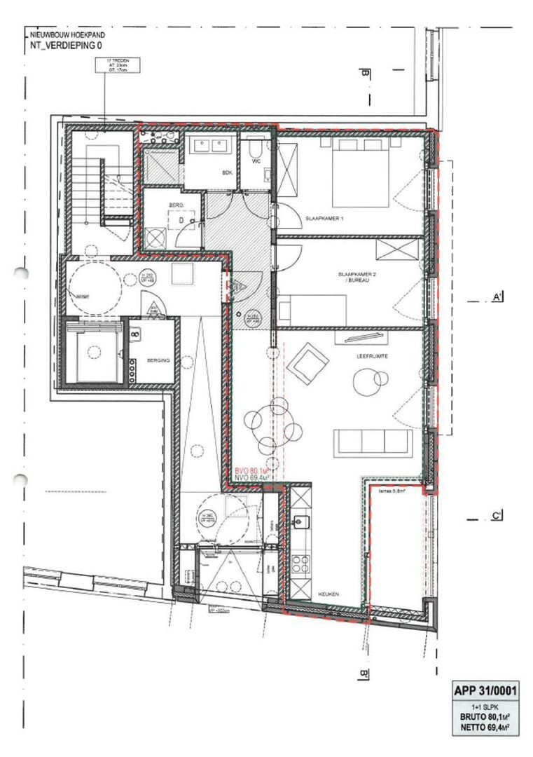
Dit super energiezuinige appartement bevindt zich op de gelijkvloerse verdieping van deze residentie. Als u het appartement binnentreedt merkt u meteen een leefruimte met open keuken die baadt in het licht. Via het grote schuifraam heb je toegang tot het grote overdekte terras met Zuid-West oriëntatie.
De keuken met composiet keukenblad is voorzien van vaatwasser, combi oven, inductie kookplaat, koelkast met vriesvak allemaal van het merk Miele. Verder heb je twee gezellige slaapkamers, een badkamer met inloopdouche, dubbele wastafel en handdoekradiator en een aparte berging en toilet.
Dankzij de vloerverwarming die aangestuurd wordt door een warmtepomp in combinatie met zonnepanelen zit je hier niet alleen duurzaam maar ook zeer energiezuinig (Bijna Energie Neutraal). De schakelaars en stopcontacten zijn van Bticino. Er is geïntegreerde led-verlichting. Overal zijn er lichtarmaturen en gordijnrails geïnstalleerd.
De fiets kan u plaatsen in de gemeenschappelijke fietsenberging in het aanpalend gebouw gekend als het 'Huis van Guislain' met haar prachtige binnentuin. De ingang tot de fietsenberging bevindt zich aan de Wilderoosstraat. Er geen parking bij het appartement maar daarvoor kan u steeds in de ondergrondse parking terecht 'Sint-Michiels', die zich op wandelafstand bevindt. Zij hanteren speciale tarieven voor bewoners! De straat zelf ondergaat op dit moment een heraanleg. Het doel is om dit een groene en autoluwe plek te maken waar de fietser centraal staat. Domicilie verplicht.
Huurprijs : 1.200 Euro per maand
Huurwaarborg : 3 maanden huur
Gemeenschappelijke lasten : geen
Er zijn individuele tellers voor water en electriciteit.
Mobiscore : 9,5/10
Beschikbaar: onmiddellijk
Bezoeken enkel na afspraak.
Voor info en bezoeken: contacteer Martine via martine@stellarimmo.be
Dit super energiezuinige appartement bevindt zich op de gelijkvloerse verdieping van deze residentie. Als u het appartement binnentreedt merkt u meteen een leefruimte met open keuken die baadt in het licht. Via het grote schuifraam heb je toegang tot het grote overdekte terras met Zuid-West oriëntatie.
De keuken met composiet keukenblad is voorzien van vaatwasser, combi oven, inductie kookplaat, koelkast met vriesvak allemaal van het merk Miele. Verder heb je twee gezellige slaapkamers, een badkamer met inloopdouche, dubbele wastafel en handdoekradiator en een aparte berging en toilet.
Dankzij de vloerverwarming die aangestuurd wordt door een warmtepomp in combinatie met zonnepanelen zit je hier niet alleen duurzaam maar ook zeer energiezuinig (Bijna Energie Neutraal). De schakelaars en stopcontacten zijn van Bticino. Er is geïntegreerde led-verlichting. Overal zijn er lichtarmaturen en gordijnrails geïnstalleerd.
De fiets kan u plaatsen in de gemeenschappelijke fietsenberging in het aanpalend gebouw gekend als het 'Huis van Guislain' met haar prachtige binnentuin. De ingang tot de fietsenberging bevindt zich aan de Wilderoosstraat. Er geen parking bij het appartement maar daarvoor kan u steeds in de ondergrondse parking terecht 'Sint-Michiels', die zich op wandelafstand bevindt. Zij hanteren speciale tarieven voor bewoners! De straat zelf ondergaat op dit moment een heraanleg. Het doel is om dit een groene en autoluwe plek te maken waar de fietser centraal staat. Domicilie verplicht.
Huurprijs : 1.200 Euro per maand
Huurwaarborg : 3 maanden huur
Gemeenschappelijke lasten : geen
Er zijn individuele tellers voor water en electriciteit.
Mobiscore : 9,5/10
Beschikbaar: onmiddellijk
Bezoeken enkel na afspraak.
Voor info en bezoeken: contacteer Martine via martine@stellarimmo.be
Details van het pand
Financieel
- Prijs
- € 1.200 per maand
- Beschikbaarheid
- Onmiddellijk
- Huurgarantie - aantal maanden
- 3
Ligging
- Ligging
- Centraal
Comfort
- Videofoon
- ja
- Aansluiting water
- ja
Gebouw
- Bewoonbare opp.
- 69,40 m²
- Constructie
- Gesloten
Terrein
- Tuin
- nee
Energie
- EPC
- 49 kWh/m²
- EPC unieke code
- 44021-G-OMV/201/158697/EP09097/A001/D01/SD001
- EPC klasse
- A
- Verwarming
- warmtepomp
- Type verwarming
- Individueel
Technieken
- Elektriciteit
- ja
Indeling
- Slaapkamers
- 2
- Badkamers
- 1
- Toiletten
- 1
- Douchekamers
- 1
- Terras
- ja
- Terras 1
- 5,86 m²